The Old Chapel
Walsingham, Norfolk
Guide Price
£600,000
"Exceptional single-storey conversion set within the grounds of the Old Vicarage, The Old Chapel has a high specification finish throughout. "
The Property
Tucked away on the fringes of the historic North Norfolk village of Little Walsingham sits The Old Chapel. This exceptional single-storey conversion set within the grounds of the former Old Vicarage offers a rare blend of character, tranquillity and striking contemporary design.
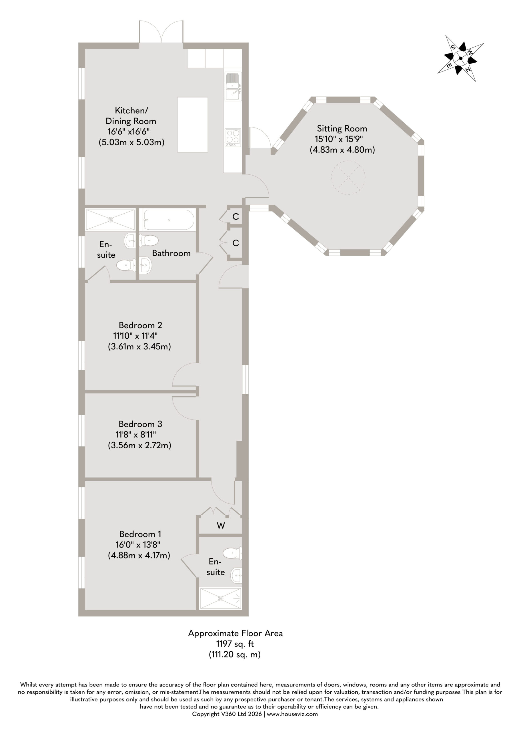
Believed to have once served as the chapel to the Old Vicarage, the property has been thoughtfully transformed into a remarkable three-bedroom home, where architectural charm meets modern comfort. At its heart lies a breathtaking octagonal sitting room – an unforgettable space crowned by a roof lantern that floods the room with natural light. Suspended dramatically, a biofuel fireplace creates a captivating focal point, perfect for cosy evenings and relaxed entertaining.
The home continues to impress with a generous open-plan entertaining room, seamlessly combining kitchen, dining and living space – ideal for hosting friends and family or simply enjoying day-to-day living in a wonderfully sociable setting.
The accommodation comprises three well-proportioned bedrooms and three bathrooms, two of which are en-suite, offering both comfort and privacy for residents and guests alike, making The Old Chapel perfect for a main home, additional residence or a very successful holiday let. Each space has been carefully designed to complement the character of the building while delivering modern convenience.
Externally
Outside, the property enjoys its own private garden, along with access to approximately two and a half acres (STMS) of beautifully maintained communal grounds within the former Old Vicarage estate. These enchanting surroundings include woodland walks, sweeping lawns, tranquil ponds and a charming walled garden – creating a truly idyllic setting.
Key features
Description
Local Information
The pretty village of Walsingham attracts pilgrims, artists, birdwatchers and those seeking a slower pace of life.
The village has many fine period cottages, offers good local shopping including a vibrant farm shop, and has a popular restaurant, a good pub and a primary school. It is well known throughout the country as a religious centre with pilgrimages to the Anglian Shrine and Slipper Chapel at nearby Houghton St Giles.
Nearby is wonderful Wells! With its sandy beach and pretty candy-striped huts, it’s easy to understand why this sleepy coastal town is a Mecca for day trippers and holiday makers, but there are plenty of reasons to make Wells-next-the-Sea your permanent home and explore this sweet spot forever.
There are plenty of ways to explore the waterways that surround the area. For a nautical adventure, jump aboard one of the Coastal Exploration Company’s traditional wooden sailing boats and adventure hidden creeks, marshes and open sea. Or test your balance with a stand-up paddle boarding session with Barefoot SUP.
The lanes behind the harbour and surrounding the town have plenty of tucked-away fishermen’s cottages which are highly sought after, as are apartments with sea views in the converted buildings overlooking the harbour. Head out of the town centre to discover plenty of spacious, grand houses along with fantastic new-build developments which are ideal for young families and downsizers alike. With a bustling community, the town is well-serviced with a primary and secondary schools, plus a GP surgery and library.
Services
Mains water, electricity and drainage. Oil fired central heating.
Tenure
Freehold.
Wayleaves, Easements & Rights of Way
The property is being sold subject to all existing wayleaves, easements and rights of way, whether or not specified within the sales particulars.
Agents Note to Purchasers
For properties marketed directly by Finest Properties, we strive to ensure all property details are accurate; however, they are not to be relied upon as statements of representation or fact and do not constitute or form part of an offer
or any contract. All measurements and floor plans are prepared as a guide only. All services, systems, and appliances listed in the details have not been tested by us, and no guarantee is given to their operating ability or efficiency. For properties marketed by other agents, please contact the listing agent directly to verify the accuracy of the information. Some information may be awaiting vendor approval.
Submitting an Offer
For properties marketed directly by Finest Properties, all offers will require financial verification, including a mortgage agreement in principle, proof of deposit funds, proof of available cash, and full chain details, including selling agents and solicitors down the chain. To comply with Money Laundering Regulations, we require proof of identification from all buyers before acceptance letters are sent and solicitors can be instructed. For properties marketed by other agents, please contact the listing agent for their offer submission procedures.
Disclaimer
The information displayed about this property comprises a property advertisement. Finest Properties makes no warranty as to the accuracy or completeness of the advertisement or any linked or associated information. Finest
Properties has no control over the content provided by the agent or developer. This property advertisement does not constitute property particulars. The information is provided and maintained by Sowerby’s Norfolk.
Gallery
Location
Walsingham, Norfolk
Are you thinking of selling?
If you need to sell a property or would like to know how much your property is worth, contact us today to arrange a valuation appointment.





















