Long Barn
Bessingham, Norfolk
Guide Price
£595,000
"Situated in a private corner of an exclusive development in the highly desirable rural village of Bessingham, Long Barn is an exceptional single-storey barn conversion offering contemporary living in a countryside setting."
The Property
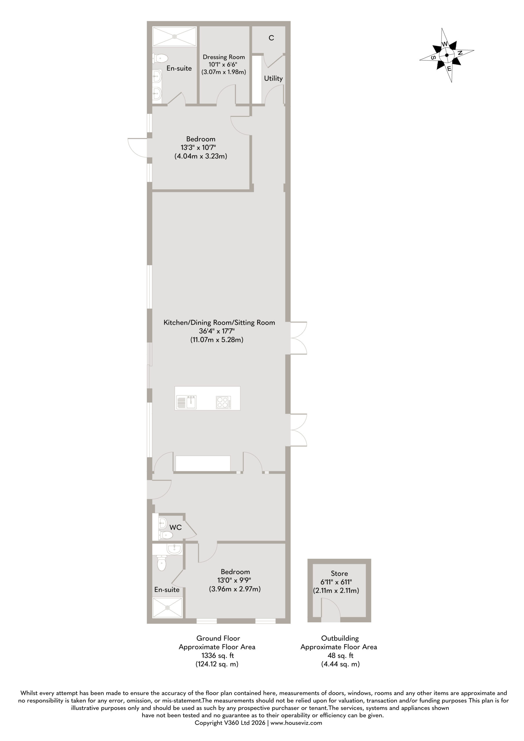
Finished to an impeccable standard throughout, the property seamlessly blends modern design with characterful charm. At the heart of the home lies an impressive open-plan reception space, beautifully designed to create a light-filled and sociable environment.
The contemporary fitted kitchen features a large central island and high-quality appliances, flowing effortlessly into the dining and sitting areas – ideal for both everyday living and entertaining. Large doors open out to gardens on either side of the property, allowing natural light to flood the space and creating a wonderful connection between indoors and out. Underfloor heating runs throughout the barn, enhancing both comfort and efficiency year-round.
Long Barn offers two generously sized double bedrooms, both benefitting from stylish en-suite bathrooms. The principal suite also enjoys the luxury of a dedicated dressing room, adding to the sense of space and comfort.
Externally
Outside, the walled courtyard garden has been thoughtfully landscaped to provide a private and elegant setting for outdoor dining and relaxation. In addition, there is a well-tended vegetable garden and a private lawned garden to the rear, perfect for enjoying the surrounding countryside. The property further benefits from ample parking for several vehicles.
Long Barn presents a rare opportunity to acquire a beautifully finished, contemporary home in an exclusive and tranquil village location.
Key features
Description
Local Information
Bessingham is a picturesque North Norfolk village, surrounded by open countryside and tranquil lanes, perfect for those seeking a slower pace of life. The village offers a sense of community and rural charm, with historic cottages and homes set within generous plots and far-reaching views.
Despite its peaceful setting, Bessingham is well connected to the region’s larger towns. Aylsham, just a short drive away, boasts independent shops, cafés, and weekly markets, while Holt is known for its Georgian streets, boutique stores, and events like the Holt Festival. The North Norfolk coast is also within easy reach, with popular spots including Cromer and Wells-next-the-Sea offering sandy beaches, coastal walks, and charming harbours.
Life in the area is all about enjoying the outdoors – quiet village lanes, open fields, and nearby nature reserves provide the perfect backdrop for walking, cycling, and reconnecting with the countryside. At the same time, the nearby towns provide cafés, restaurants, and essential amenities, creating a balance between peaceful rural living and modern convenience.
From charming village homes to stylish family houses in surrounding towns, this part of North Norfolk offers a lifestyle that blends tranquillity with accessibility – perfect for those who want the best of both worlds.
Services
Mains water and electricity. Oil fired underfloor heating. Sewerage via private treatment plant.
Tenure
Freehold.
Wayleaves, Easements & Rights of Way
The property is being sold subject to all existing wayleaves, easements and rights of way, whether or not specified within the sales particulars.
Agents Note to Purchasers
For properties marketed directly by Finest Properties, we strive to ensure all property details are accurate; however, they are not to be relied upon as
statements of representation or fact and do not constitute or form part of an offer or any contract. All measurements and floor plans are prepared as a guide only. All services, systems, and appliances listed in the details have not been tested by us, and no guarantee is given to their operating ability or efficiency. For properties marketed by other agents, please contact the listing agent directly to verify the accuracy of the information. Some information may be awaiting vendor approval.
Submitting an Offer
For properties marketed directly by Finest Properties, all offers will require financial verification, including a mortgage agreement in principle, proof of deposit funds, proof of available cash, and full chain details, including selling agents and solicitors down the chain. To comply with Money Laundering Regulations, we require proof of identification from all buyers before acceptance letters are sent and solicitors can be instructed. For properties marketed by other agents, please contact the listing agent for their offer submission procedures.
Disclaimer
The information displayed about this property comprises a property advertisement. Finest Properties makes no warranty as to the accuracy or
completeness of the advertisement or any linked or associated information. Finest Properties has no control over the content provided by the agent or developer. This property advertisement does not constitute property particulars. The information is provided and maintained by Sowerbys Norfolk.
Gallery
Location
Bessingham, Norfolk
Are you thinking of selling?
If you need to sell a property or would like to know how much your property is worth, contact us today to arrange a valuation appointment.



















