Oxnead House
Oxnead, Norfolk
Offers Over
£1,250,000
"A truly exceptional home in the most idyllic located nestled on the River Bure"
The Property
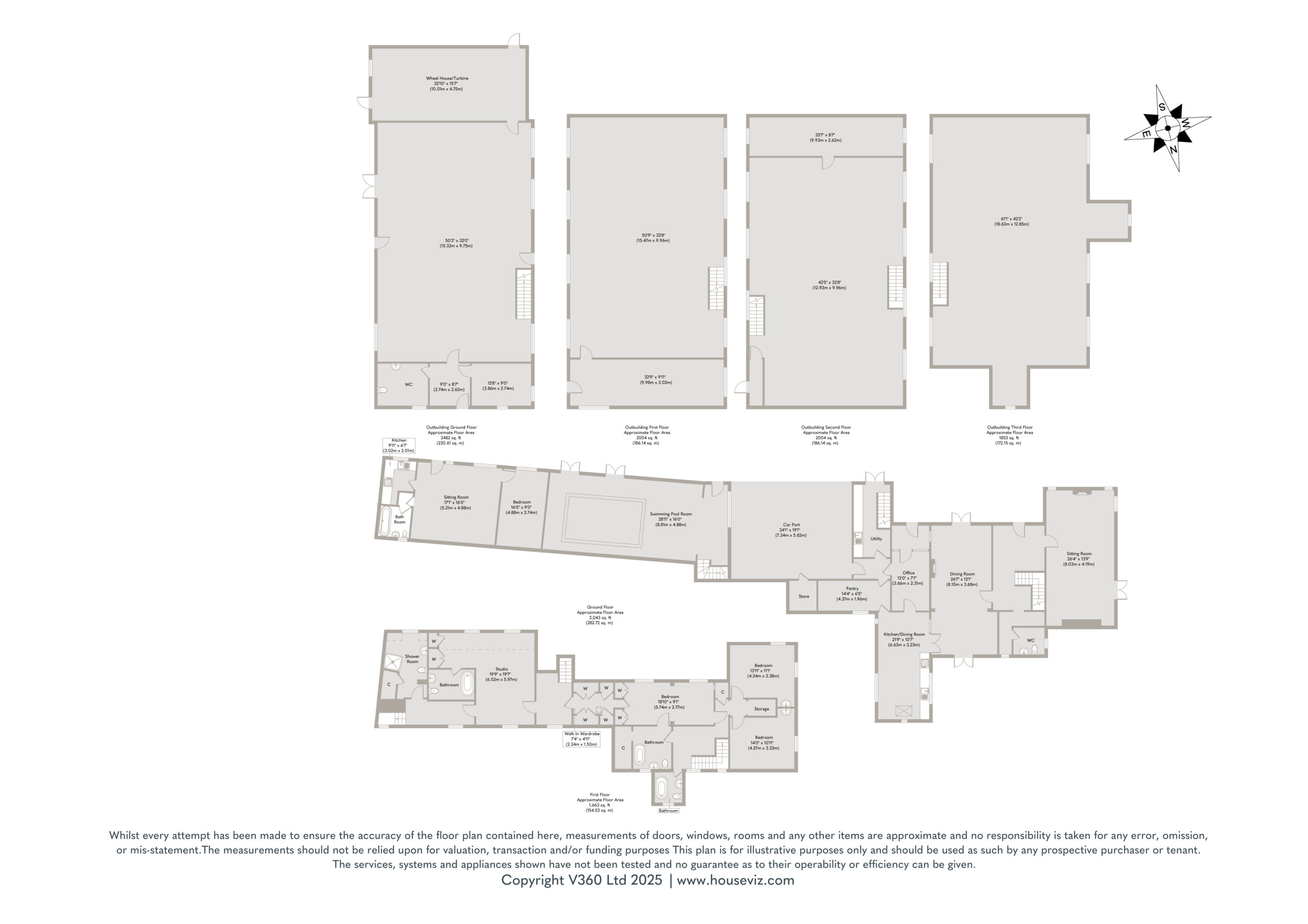
Tucked away in the heart of the Norfolk countryside, Oxnead Mill is a truly exceptional property – a quintessential period home accompanied by an awe-inspiring four-storey, Grade II listed water mill. The approach sets the tone beautifully: a long private driveway follows the tranquil River Bure, creating a memorable first impression.
Lovingly owned for over 60 years, the main house presents all the charm and character one would expect from a classic English country cottage, yet with well-proportioned and thoughtfully laid-out interiors. The ground floor offers a welcoming reception hall, a delightful sitting room, an elegant dining room perfect for entertaining, a well-appointed study, a fully fitted kitchen/breakfast room, pantry, and cloakroom.
Upstairs, the first floor provides flexible and generous accommodation. Three spacious bedrooms are served by two bathrooms, while a separate large studio flat – complete with its own bathroom and additional shower room – offers an excellent degree of privacy. This arrangement makes the property particularly versatile, whether for family living, guest accommodation, or independent use.
Externally
Adding to its appeal, Oxnead Mill boasts an indoor swimming pool and a very useful, self-contained annexe – ideal for accommodating relatives or generating additional income.
Just across the driveway stands the Grade II listed Water Mill, a spectacular structure that straddles the River Bure. Extending to approximately 8,250 sq. ft over four floors, it offers tremendous potential for a variety of uses (stpp) – from a unique commercial venue to an extraordinary residential conversion.
In previous years, the former owner used the mill to house a remarkable collection of cinema organs, hosting concerts, parties and other memorable events that celebrated its dramatic setting. Today, the mill also features a working water turbine that supplies renewable energy to the main house.
Set within approximately 3.5 acres of stunning, mature grounds, the property is a haven of peace and natural beauty. The formal gardens feature sweeping lawns, established borders, and majestic specimen trees, all framed by the gently flowing river. Wildlife thrives here, making it a sanctuary for nature lovers and those seeking tranquillity.
Oxnead Mill presents a rare opportunity to acquire a landmark property that seamlessly blends heritage, lifestyle and potential. With its idyllic riverside position, extensive grounds and the extraordinary presence of the water mill, it offers an unrivalled setting for those seeking a truly unique home in the heart of Norfolk.
Key features
Description
Local Information
Oxnead is a fascinating lost settlement and former civil parish, now forming part of Brampton in the Broadland district of Norfolk. Steeped in history and rural charm, it lies around three miles south-east of the popular market town of Aylsham, with its array of independent shops, cafés, schools and regular markets.
Today, the hamlet is best known for the magnificent Grade I listed Oxnead Hall, once among the grandest country houses in England and still a landmark of historical and architectural importance. Alongside it stands St Michael’s Church, a beautiful medieval building with close ties to the influential Paston family, providing a striking reminder of Oxnead’s rich past.
The River Bure meanders through the landscape, creating an idyllic backdrop of water meadows, wildlife and rolling farmland. Despite its peaceful and secluded feel, Oxnead is well connected: Norwich is within easy reach by road, offering rail links to London, while the Norfolk Broads and North Norfolk coast provide endless opportunities for leisure and recreation.
This blend of heritage, natural beauty and accessibility makes Oxnead a truly unique and desirable location.
Services
Mains electricity. Private water and drainage. Oil fired central heating.
Tenure
Freehold.
Wayleaves, Easements & Rights of Way
The property is being sold subject to all existing wayleaves, easements and rights of way, whether or not specified within the sales particulars.
Agents Note to Purchasers
For properties marketed directly by Finest Properties, we strive to ensure all property details are accurate; however, they are not to be relied upon as statements of representation or fact and do not constitute or form part of an offer or any contract. All measurements and floor plans are prepared as a guide only. All services, systems, and appliances listed in the details have not been tested by us, and no guarantee is given to their operating ability or efficiency. For properties marketed by other agents, please contact the listing agent directly to verify the accuracy of the information. Some information may be awaiting vendor approval.
Submitting an Offer
For properties marketed directly by Finest Properties, all offers will require financial verification, including a mortgage agreement in principle, proof of deposit funds, proof of available cash, and full chain details, including selling agents and solicitors down the chain. To comply with Money Laundering Regulations, we require proof of identification from all buyers before acceptance letters are sent and solicitors can be instructed. For properties marketed by other agents, please contact the listing agent for their offer submission procedures.
Disclaimer
The information displayed about this property comprises a property advertisement. Finest Properties makes no warranty as to the accuracy or completeness of the advertisement or any linked or associated information. Finest Properties has no control over the content provided by the agent or developer. This property advertisement does not constitute property particulars. The information is provided and maintained by Sowerbys.
Gallery
Location
Oxnead, Norfolk
Are you thinking of selling?
If you need to sell a property or would like to know how much your property is worth, contact us today to arrange a valuation appointment.

































