Coombe Brook
Lambrook Street, Glastonbury, Somerset
Guide Price
£1,795,000
"A splendid house with a detached cottage and beautiful mature grounds. Central location & great privacy"
The Property
The attractive part-glazed front door opens to the hall which has parquet flooring, timber panelling and a staircase. To the right is the day room with its wood-burning stove and a large floor-to-ceiling west-facing window. This room leads to the spectacular kitchen/dining room which has been thoughtfully and skilfully planned and constructed, creating an uplifting environment where the inside blends seamlessly with the outside. Huge, frameless, sliding, glazed panels (Sky-Frame) retract, opening the room up to a south-facing, sheltered terrace. A clever overhang above ensures that neither rain nor sun limits your enjoyment of this space. Underfloor heating maintains the temperature as required.
The kitchen is bespoke, solid timber with a granite worksurface, and an oblong island takes centre stage, dividing the workspace from the dining area. There is a small sink with an Insinkerator for vegetable prep on the island, with a double sink opposite. Appliances include an integrated steam oven, dishwasher, microwave, drinks fridge and range cooker with gas hob, hotplate, extractor and a large fridge/freezer. There are under-unit lights throughout and ample storage in large full-height cupboards in the dining area.
To the rear of the day room, a door leads to the boot room/utility room. Here there’s also a sink, granite worksurface and shelving with space for a tumble dryer, washing machine and fridge/freezer.
An exterior door leads out and an internal door leads back to the hall and a cloakroom with plenty of space for boots and coats. Beyond is a garden door and the back stairs to the first floor.
To the left of the entrance hall is the sitting room with a large west-facing window and a door into the double-aspect drawing room which has French doors opening to the garden. The bay window with its fitted seats is an ideal and comfy place to sit and play cards. The open fireplace provides a focal point to this charming room and to the right the large timber bookcase conceals a secret…
One of the books is a lever which, when activated, causes the whole bookshelf to open, revealing a hidden room. This super versatile space has been a dance studio and it retains the huge, mirrored cupboards at one end and the balance bar on the wall. It is bright, with three windows an exterior door to the garden and oak flooring.
The main staircase, with an elegant handrail, leads to a galleried landing and serves the 4 bedrooms which all have built-in wardrobes and attractive garden views.
The master bedroom suite has a fully fitted dressing room and a luxurious, colonial-style bathroom with twin basins, a bidet, a bath and a shower area.
There are three other bedrooms, a bathroom and a shower room.
Externally
A bespoke, double, wrought iron gate with ginkgo leaf pattern opens to the driveway which continues to a parking area in front of the Coach House (with an EV charge point.) A cobbled lane leads to a rear garage.
The house has a paved veranda to the front and a sheltered terrace to the south side. Expansive gardens surround the house providing interest and colour in all seasons. Roses climb up the veranda and a magnolia hugs the west wall. A wisteria-clad wall leads to a rear terrace where the kitchen joins the garden. Raised beds provide interest around the terrace and from here the lawn rises gently with a variety of dispersed trees giving the illusion of an infinite wooded environment.
Contained within a stone-built channel a small stream trickles through the garden from east to west, a footpath meanders alongside this and opens to a secluded, paved terrace by a small pond. On the north side, there is an elaborate kitchen garden, greenhouse and tool shed.
In total the grounds and garden are towards an acre and a half, surrounded by a combination of red brick and stone wall.
Key features
Description
Local Information
Glastonbury has been a religious centre throughout history and back into the times of legends. The Celtic monastery evolved into one of England’s wealthiest and most influential abbeys and the town grew up alongside it. Today it’s a small but thriving town and a major tourist venue, welcoming thousands of visitors each year. Medieval Glastonbury – designated a conservation area – clusters around the evocative ruins of the Abbey.
Just 5 miles from Glastonbury is Wells which is the smallest city in England (population 10,000). Its centre is the marketplace (local markets twice a week) surrounded by many medieval buildings including the Cathedral and moated Bishop’s Palace.
Immediately to the south (2 miles) of Glastonbury is the more recent town of Street and these centres provide a huge range of facilities and amenities. There are excellent local schools and the private sector includes Millfield, Wells Cathedral School, Downside, All Hallows and the Bruton schools. About 12 miles southeast is Castle Cary station with a main rail line to London.
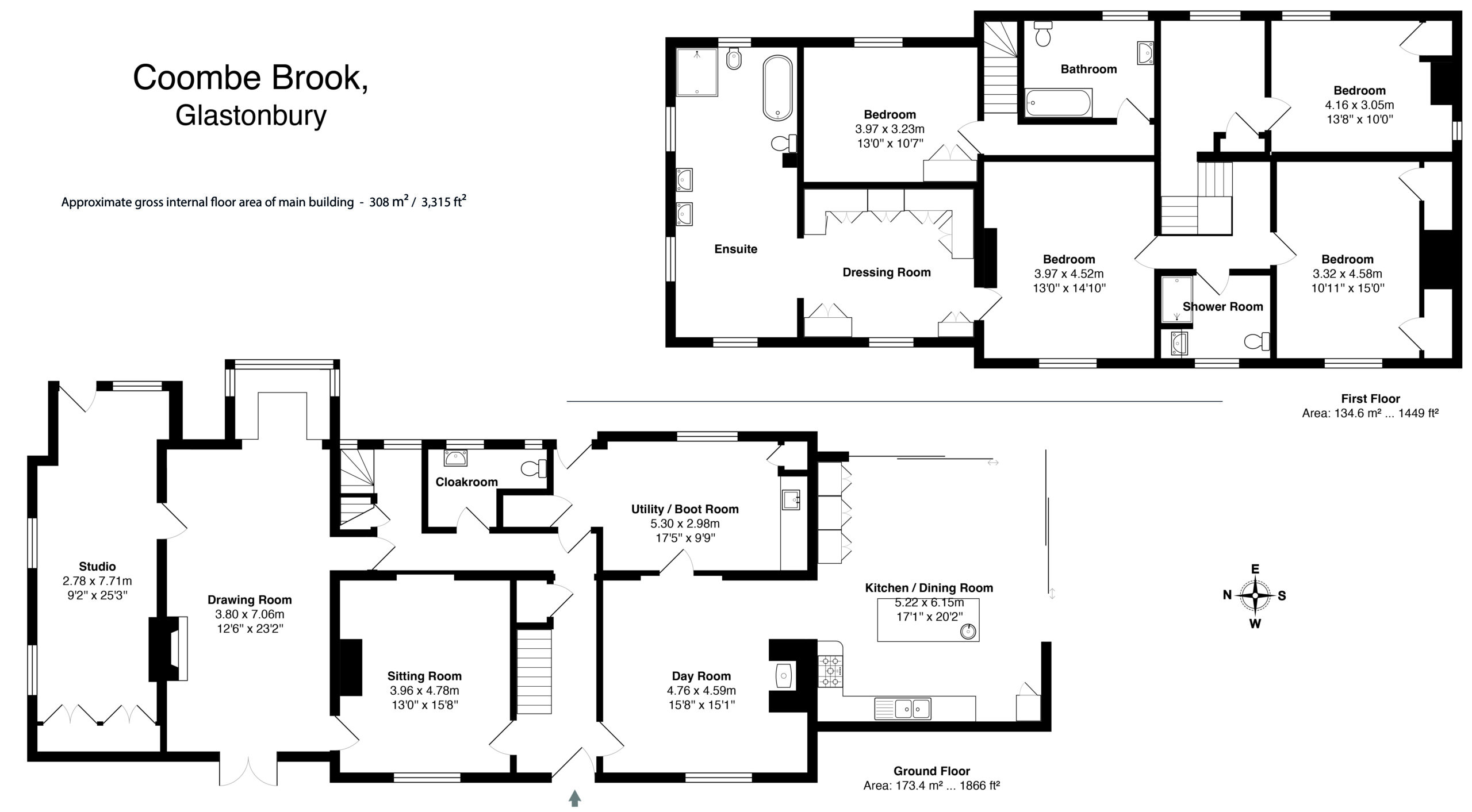
Accommodation in Brief
Ground Floor
Entrance Hall | Sitting Room | Day Room | Drawing Room | Studio Kitchen/Dining Room | Utility | Cloakroom
First Floor
Principal Suite with Dressing Room & Bathroom | Three Further Bedrooms with Two Bathrooms
Externally
Private Drive | Garage | Parking | Large Grounds including Formal Lawn, Orchard and Kitchen Garden
Annexe/Coach House
Reception Hall | Study | Kitchen/Dining/Living Room | Cloakroom | Three Bedrooms | Two Bathrooms
Approximate Mileages
Bristol 26 miles | Bath 25 miles | Castle Cary rail station 14 miles | M5 (junction 23) 14 miles.
Services
Mains electricity, water, gas and drainage. Underfloor heating in the kitchen, ensuite bathroom and ground floor of the barn. Council Tax Band G. EV charging point.
Tenure
Freehold
Agents Note
Grade II is listed in a conservation area.
Wayleaves, Easements & Rights of Way
The property is being sold subject to all existing wayleaves, easements and rights of way, whether or not specified within the sales particulars.
Agents Note to Purchasers
For properties marketed directly by Finest Properties, we strive to ensure all property details are accurate; however, they are not to be relied upon as statements of representation or fact and do not constitute or form part of an offer or any contract. All measurements and floor plans are prepared as a guide only. All services, systems, and appliances listed in the details have not been tested by us, and no guarantee is given to their operating ability or efficiency. For properties marketed by other agents, please contact the listing agent directly to verify the accuracy of the information. Some information may be awaiting vendor approval.
Submitting an Offer
For properties marketed directly by Finest Properties, all offers will require financial verification, including a mortgage agreement in principle, proof of deposit funds, proof of available cash, and full chain details, including selling agents and solicitors down the chain. To comply with Money Laundering Regulations, we require proof of identification from all buyers before acceptance letters are sent and solicitors can be instructed. For properties marketed by other agents, please contact the listing agent for their offer submission procedures.
Disclaimer
The information displayed about this property comprises a property advertisement. Finest Properties makes no warranty as to the accuracy or completeness of the advertisement or any linked or associated information. Finest Properties has no control over the content provided by the agent or developer. This property advertisement does not constitute property particulars. The information is provided and maintained by Roderick Thomas.
Gallery
Location
Lambrook Street, Glastonbury, Somerset
Are you thinking of selling?
If you need to sell a property or would like to know how much your property is worth, contact us today to arrange a valuation appointment.

































